Читать книгу - "Линейные корабли типа “Бретань” (1912-1953) - Юрий Александров"
Аннотация к книге "Линейные корабли типа “Бретань” (1912-1953) - Юрий Александров", которую можно читать онлайн бесплатно без регистрации

Линейный корабль "Прованс". 1916 г.
Поперечный (на стр. 18) и продольный (вверху) разрез корпуса в районе 1 -й башни главного калибра

Линейный корабль "Прованс". 1916 г.
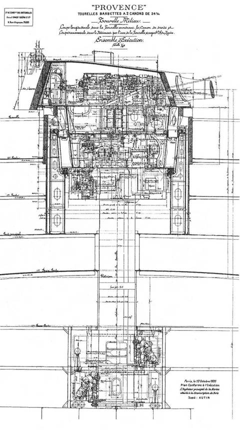
(План башенной установки с указанием внутреннего расположения)
Таким образом, число орудий противоминного калибра уменьшилось до восемнадцати (секции №№ 8-15).
Управление стрельбой противоминной артиллерии велось с шести командно-дальномерных постов, оснащенных дальномерами совмещающего типа системы Барра и Струда (Barr & Strud) с оптической базой 2,0 м. Башенки командно-дальномерных постов размещались на 2-й палубе (на крыше каземата). Четыре поста управления огнем концевых плутонгов (секции №№ 6,7,14 и 15) размещались в неподвижных башенках. Дальномеры противоминной артиллерии находились во вращающихся башнях.
Два дальномера были установлены побортно в районе грот-мачты, а два в составе командно-дальномерных постов центральных секций №№ 8,9,12 и 13, в двух вращающихся башенках побортно от барбета средней башни главного калибра (№ 3). Офицеры, управлявшие огнем 6-й и 7-й секций, при необходимости управляли и огнем секций №№ 10 и 11. Использовались следующие режимы управления огнем противоминной артиллерии:
– с централизованной наводкой по каждому борту;
– с централизованной наводкой по борту, под управлением соответствующего поста управления стрельбой из секций № 8 или № 9;
– с централизованной наводкой и стрельбой концевых секций под управлением командных постов секций 8,9 и 12,13;
– с самостоятельной стрельбой каждой секции или орудия.
В среднем 138,6-мм орудия давали 1 выстрел в 10 сек.

Линейный корабль "Прованс". 1916 г. (Поперечное сечение корпуса в районе 3-й башни)
Зенитную артиллерию составляли два 75-мм зенитных орудия военного образца, установленные на спардеке.
Малокалиберная артиллерия имела семь скорострельных орудий калибра 47 мм образца 1885 г., с длиной ствола 50 калибров, вес снаряда равнялся 1,5 кг. Пять 47-мм орудий располагались на крышах башен главного калибра: на носовых и средней башнях по левому борту, а на кормовых башнях по правому борту. Два орудия стояли побортно на продолжении крыши камбуза у боевой рубки. Станки этих орудий были переоборудованы для стрельбы по воздушным целям. В процессе долгой службы линейных кораблей типа "Бретань" состав их зенитной артиллерии неоднократно изменялся и усиливался.
Для поддержки десанта, изначально на кораблях имелось по два 65- мм десантных орудия образца 1881 г.
Торпедное вооружение состояло из четырех подводных торпедных аппаратов калибром 450 мм с общим боезапасом 12 торпед (длина торпеды 5,7 м, вес боевой части 144 кг).
Авиационное вооружение. Первоначально на кораблях не предусматривалось базирование корабельных самолетов, но опыт первой мировой войны показал, что нужны корабельные летательные аппараты для корректировки артиллерийского огня.
В ходе войны, в 1918 г., грот- мачта "Бретань" была срезана для базирования привязного аэростата. Но еще раньше, в 1917 г., в британском флоте осуществили базирование колесных самолетов на линейных кораблях с использованием взлетных платформ. Платформы устанавливались на крышах башен главного калибра. Башня при взлете самолета разворачивалась против ветра. Взлет осуществлялся как с горизонтально расположенных платформ, так и с поднятыми стволами орудий, что обеспечивало более легкий взлет. Первый такой взлет во французском флоте совершил 26 октября 1918 г. на линейном корабле "Париж" типа "Курбе" с платформы, смонтированной на башне № 2, на самолете Hanriot HD.2 лейтенант Гире (Guierre). Из-за малой мощности мотора (130 л.с.) это было достаточно рискованным, несмотря на малый взлетный вес самолета (723 кг). Однако командование флотом считало, что при достаточной мощности мотора, взлет был бы успешным, а большие корабли, согласно новой организации эскадры, в обязательном порядке должны иметь самолеты для корректировки артиллерийского огня и защиты от авиации противника (Письмо Морского министра №1988 Aero 1 от25 августа 1922 г.).
На французских линейных кораблях "Бретань" и "Лоррейн" установили взлетные платформы нового образца. На "Бретань" в 1920 г. эти платформы находились на башнях №№ 2 и 4. Затем в 1924 г. платформы с этих башен сняли, но поставили платформу на башне № 3. При ремонте и модернизации 1928 г. платформу сохранили, но затем все же демонтировали. В качестве самолета-истребителя с коротким взлетом для морской авиации в 1922 г.был создан самолет Hanriot HD.12, представлявший собой развитие HD.2, но с мотором Le Rhone мощностью 170 л.с. Затем в 1923 г. создали самолет Hanriot HD.27 с двигателем Hispano-Suiza 8Ас мощностью 280 л.с. Этот самолет взлетал с носовой платформы шлюпа "Балом" и рассматривался как самолет для кораблей, оснащенных взлетными платформами.
Оригинальный эксперимент провели на линейном корабле "Лоррейн" в феврале 1924 г. На фок-мачте, которая после модернизации представляла из себя прочную треногую конструкцию, на высоте 24 м под углом 45° в корму от траверза по правому борту, была установлена ферменная конструкция, к которой за верхнюю плоскость и верхнюю часть киля крепился самолет Hanriot HD.29. С нее же он и стартовал. Самолет имел колесное шасси, но был снабжен надувными поплавками для посадки на воду.

Линейный корабль "Прованс". 1916 г.
(Фрагменты броневой палубы с указанием размещений батарей 138,6-мм орудий)

Линейный корабль "Прованс". 1916 г. (Продольные разрезы башни главного калибра)
Он был создан как модификация самолета Hanriot HD.27. Корабль разворачивался так, чтобы подвешенный к рампе самолет стартовал против ветра. На режиме развития мотором полной мощности крепление отдавалось, самолет слегка проседал в воздухе, а затем выходил на режим нормального полета. Предполагалось, что если самолет взлетал с колесным шасси, то он садился на наземный аэродром. Либо самолет взлетал с поплавками, садился на воду, поднимался на борт корабля шлюпочным краном, а затем после проверки и заправки с помощью специальной тросовой системы поднимался к крепежным узлам рампы. При первом испытательном полете, который выполнил лейтенант Тест (Teste), самолет коснулся колесами воды и скапотировал. Пилота спасли, но этот эксперимент надежд не оправдал и рампу на фок-мачте вскоре убрали.
Прочитали книгу? Предлагаем вам поделится своим впечатлением! Ваш отзыв будет полезен читателям, которые еще только собираются познакомиться с произведением.
Оставить комментарий
-
Илья12 январь 15:30
Книга прекрасная особенно потому что Ее дали в полном виде а не в отрывке
Горький пепел - Ирина Котова
-
Гость Алексей04 январь 19:45
По фрагменту нечего комментировать.
Бригадный генерал. Плацдарм для одиночки - Макс Глебов
-
Гость галина01 январь 18:22
Очень интересная книга. Читаю с удовольствием, не отрываясь. Спасибо! А где продолжение? Интересно же знать, а что дальше?
Чужой мир 3. Игры с хищниками - Альбер Торш
-
Олена кам22 декабрь 06:54
Слушаю по порядку эту серию книг про Дашу Васильеву. Мне очень нравится. Но вот уже третий день захожу, нажимаю на треугольник и ничего не происходит. Не включается
Донцова Дарья - Дантисты тоже плачут


