Читать книгу - "Германские субмарины Тип IXC крупным планом - Сергей В. Иванов"
Аннотация к книге "Германские субмарины Тип IXC крупным планом - Сергей В. Иванов", которую можно читать онлайн бесплатно без регистрации

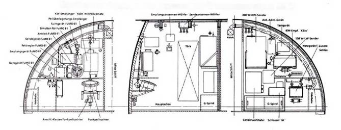
Приборы н оборудование радиоотсека 43 подлодок серии IXС

Модернизация верхней палубы носовой части серии IXС-40

Теоретический чертёж подлодки U 190 серии IXС (модернизация верхней палубы в носовой части)

Варианты камуфляжа U 507

U 154

Мачта шнорхеля (откидная мачта с приводным механизмом)

Мачта шнорхеля (откидная мачта с приводным механизмом)

Мачта шнорхеля на верхней палубе

Основной перископ

Перископ для наблюдения за ночными воздушными целями

Рамка радиолокатора FuMO 30

Рамки радиолокаторов (FuMB-Ant.5 «Samoa» и FuMB- Ant.3 «Bali 1»)

Рамка радиолокатора (тип Н, FuMB 26 «Tunis» – приёмная часть)

Зенитная установка калибра 3,7-см

3,7-см зенитный полуавтомат М 42/LM 43U

2-см счетверённый зенитный автомат 38.43 U

2-см зенитный автомат МК S5/106 с прицелом типа I

2-см счетверённый зенитный автомат 38.43 U (карта смазки)

Головки шнорхелей (варианты)

Задняя часть носового отсека подлодки U190 с видом на водонепроницаемую переборку жилого отсека унтер- офицеров. Слева перед дверью туалета находятся два умывальника с откидной деревянной крышкой, под ними сточные трубы и емкость для грязной воды. Каждый из умывальников имел подсоединение к баку с холодной водой (вода для умывания), который находился в кормовой части обшивки рубки. Справа рядом с дверью туалета батарея парового отопления. У левого борта вспомогательный трюмный насос.

Двухъярусные койки в жилом офицерском отсеке подлодки U 505 с дубовыми шкафами для белья и личных вещей слева. Справа перегородка кают-компании. Койки шириной 62,5 см и длиной 180 см имели снизу спиральные пружины, они были снабжены подушками в наволочках и матрасами. Деревянная мебель и и шкаф со стеклянными дверцами сохранились оригинальными после реставрации.

Справа: вид на заднюю часть жилого отсека унтер-офицеров подлодки U 505 после её захвата американцами в июне 1944 г. Слева двухъярусные койки, в середине приводная рукоятка для открытия и закрытия заливного клапана балластной цистерны № 7. Позади – шкаф для рабочей одежды.

Справа: передняя часть командирского отсека на подлодке U 505 со следами обыска после захвата 4 июня 1944 г. Рядом с диван-кроватью письменный стол с аптечкой на стене. В ящиках над столом находились навигационные инструменты и книги. Над кроватью за открытой деревянной дверью стальная дверь сейфа.
Прочитали книгу? Предлагаем вам поделится своим впечатлением! Ваш отзыв будет полезен читателям, которые еще только собираются познакомиться с произведением.
Оставить комментарий
-
Вера Попова10 октябрь 15:04
Захватывает,понравилось, позитивно, рекомендую!Спасибо автору за хорошую историю!
Подарочек - Салма Кальк
-
Лиза04 октябрь 09:48
Роман просто супер давайте продолжение пожалуйста прочитаю обязательно Плакала я только когда Полина искала собаку Димы барса ♥️ Пожалуйста умаляю давайте еще !))
По осколкам твоего сердца - Анна Джейн
-
yokoo18 сентябрь 09:09
это прекрасный дарк роман!^^ очень нравится
#НенавистьЛюбовь. Книга вторая - Анна Джейн
-
Гость Алла10 август 14:46
Мне очень понравилась эта книга, когда я её читала в первый раз. А во второй понравилась еще больше. Чувствую,что буду читать и перечитывать периодически.Спасибо автору
Выбор без права выбора - Ольга Смирнова


