Читать книгу - "Пчеловодство. Первые шаги к прибыльному хозяйству - Василий Королев"
Аннотация к книге "Пчеловодство. Первые шаги к прибыльному хозяйству - Василий Королев", которую можно читать онлайн бесплатно без регистрации

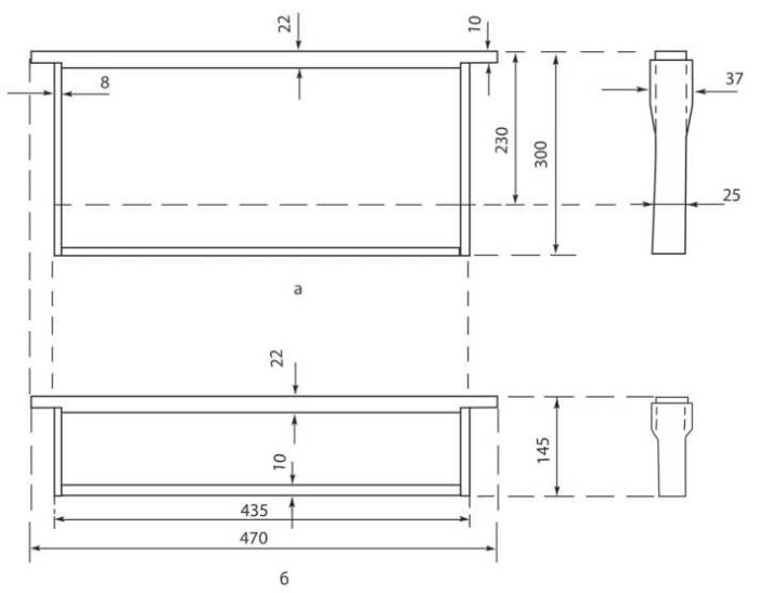
Рис 21. Ульевые рамки:
а – гнездовая, магазинная (полурамка), размеры – в мм

Рис 22. Шкаф для хранения рамок

Рис 23. Дымарь
(к стр. 217)

Рис 24. Стамеска пасечная
(к стр. 218)

Рис 25. Щетки и гусиное перо
(к стр. 218)

Рис 26. Скребки
(к стр. 218)

Рис 27. Ящики переносные
(к стр. 219)

Рис 28. Рабочий ящик пчеловода
(к стр. 219)

Рис 29. Роевни
(к стр. 219)

Рис 30. Решетки разделительные
(к стр. 220)

Рис 31. Пчеловодные
щипцы для рамок (к стр. 221)

Рис 32. Разновысотная опора
(к стр. 221)

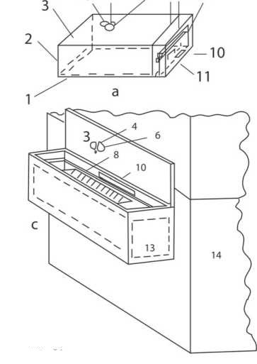
Рис 33. Кормушки:
1 – наклонное дно, 2 – корпус, 3 – крышка, 4 – заливное отверстие, 5 – ось заслонки, 6 – заслонка, 7 – перегородка для пчел, 8 – поплавок, 9 – перегородка для сиропа, 10 – кормовая щель, 11 – щель для сиропа, 12 – плечики, 13 – ванночка для корма, 14 – корупус улья; а – надрамочная, в – рамочная, с – внешняя кормушка (к стр. 221)

Рис 33а. Разрез надрамочной кормушки:
1 – перегородка, 2 – глухая перегородка, 3 – крышка из плексигласа,
4 – выходное кормовое отверстие, 5 – дно кормушки, 6 – промежуток 2 мм, 7 – заливное отверстие (к стр. 221)

Рис 34. Удалители: а – пластинчатый, б – лотковый (к стр. 222–223)

Рис 35. Пасечные ножи и вилка: а – нож, б – электрический нож, в – вилка (к стр. 224)

Рис 36. Слева – стол для распечатывания сотов:
1 – медовые рамки, 2 – двухскатная металлическая рама,
3 – распечатываемый сот, 4 – дно, 5 – решетка, 6 – кран для слива меда. Справа – деревянная рама (к стр. 224)

Рис 37. Расположение рамок в медогонках 1, 2 и 3 – вид сверху, в медогонке универсальной (4) – вид сбоку (к стр. 225)

Рис 38. Медогонки: хордиальная, с мотором – (слева), 1 – радиальная, 2 – универсальная.
(к стр. 225)

Рис 39. Фильтры:
а – двухсекционный, б – трехсекционный погружной (к стр. 226)
Прочитали книгу? Предлагаем вам поделится своим впечатлением! Ваш отзыв будет полезен читателям, которые еще только собираются познакомиться с произведением.
Оставить комментарий
-
Вера Попова27 октябрь 01:40
Любовь у всех своя-разная,но всегда это слово ассоциируется с радостью,нежностью и счастьем!!! Всем добра!Автору СПАСИБО за добрую историю!
Любовь приходит в сентябре - Ника Крылатая
-
Вера Попова10 октябрь 15:04
Захватывает,понравилось, позитивно, рекомендую!Спасибо автору за хорошую историю!
Подарочек - Салма Кальк
-
Лиза04 октябрь 09:48
Роман просто супер давайте продолжение пожалуйста прочитаю обязательно Плакала я только когда Полина искала собаку Димы барса ♥️ Пожалуйста умаляю давайте еще !))
По осколкам твоего сердца - Анна Джейн
-
yokoo18 сентябрь 09:09
это прекрасный дарк роман!^^ очень нравится
#НенавистьЛюбовь. Книга вторая - Анна Джейн


