Читать книгу - "Первые русские миноносцы - Рафаил Мельников"
Аннотация к книге "Первые русские миноносцы - Рафаил Мельников", которую можно читать онлайн бесплатно без регистрации

Расположение миноноски на железнодорожном транспортере (проект переброски на север по Московско-Ярославско-Архангельской железной дороге в 1892–1896 гг.).
Служили миноноски достаточно долго. До начала XX в. из списков были исключены немногие. Две миноноски в 1896 г. перебросили по железной дороге из Балтики в Черное море. На Балтике две миноноски в 1885 г. использовали для артиллерийских опытов. Одна погибла в 1887 г., другая (от взрыва котла) в 1900 г. Одна пережила взрыв в 1878 г. и служила, как и большинство, до 1908 г. С 1889 г. по 1900 годы вместе с переделанными в портовые катера исключили из списков еще 15 балтийских миноносок. В Черном море миноноски "Черепаха" и "Бычок" в мае 1884 г. передали в состав болгарского флота. В 1900 г. исключили из списков еще три (две-для переделки в катера для Севастопольского порта). Одна, затонувшая в 1878 г. от взрыва котла, в 1880 г. была восстановлена и служила до 1904 г. во Владивостоке. Одну миноноску, сняв с нее машины, в 1896 г. переоборудовали в пристрелочную минную станцию. Успели миноноски принять участие и в русско-японской войне.

Миноноска "Коноплянка" идет в Неву на парад.
Из-за неготовности флота к войне пришлось, как это с завидным постоянством повторялось в истории России, предпринимать экстренные меры по ускорению достройки и заказу новых кораблей. На этот раз в числе признанных необходимыми мерами началась затяжная авантюра с приобретением вошедших в легенды "экзотических крейсеров" (их, несмотря на гарантированное противодействие Англии, пытались перекупить у Чили и Аргентины через подставных лиц). Велись переговоры о постройке и заказе новых подводных лодок и эскадренных миноносцев (и тоже с соблюдением никого не обманывавшей "секретности"), в США поспешно закупали партию моторных сторожевых катеров фирмы Никсона.
Лихорадочно достраивались собственные подводные лодки, и затем предпринимались героические усилия по переброске лодок на столь же спешно проектировавшихся и сооружавшихся железнодорожных транспортерах. Через перекупщиков, платя бешеные "комиссионные", приобретали базисные дальномеры Барра и Струда, оснащение которыми кораблей флота (несмотря на состоявшееся еще в 1901 г. решение МТК) ГУКиС почти откровенно саботировало.
Сормовскому заводу выдали экстренный заказ на постройку серии речных канонерских (по образцу английских "нильских") лодок для Амура и обсуждали вопрос о переброске с Волги на Амур для превращения в мощные плавучие батареи первых в мире дизельных судов "Вандал" и "Сармат".
Не пренебрегали даже "полуподводной" (не погружавшейся из-за отсутствия электродвигателя), переоборудованной из педальной лодки С. К.
Джевецкого, лодкой лейтенанта С. А. Яновича.
Оборону Амура решили усилить и миноносками 1878 года. Десять из них (NN 3, 6, 7, 9, 18,47, 48, 61, 64, "бывшие балтийские "Пескарь", "Кречет", "Крокодил", "Зяблик", "Чайка", "Тетерев", "Утка", "Коноплянка", "Глухарь", номер и название десятой не установлены), с 15 минами Уайтхеда в начале мая 1904 г. отправили в Николаевск в сопровождении ремонтной мастерской. Летом к ним присоединились доставленные из Владивостока еще четыре миноноски. Из этих 14 кораблей 9 имели аппараты для мин Уайтхеда и 5 — аппараты для метательных мин. Каждая имела на вооружении по 2 37-мм пушки.

Миноноска постройки 1877 года
Как по возрасту, так и по конструкции корабли, конечно, мало годились для службы на реке. Мешали чрезмерная осадка, уязвимым был винторулевой комплекс, выступавший ниже киля на 0,76 м. Низкой из-за наличия одного гребного винта была маневренность. Но как малоподвижное корабли для засад в бухтах и заводях корабли при появлении противника могли сыграть свою роль. На их основе энергичными подготовительными действиями капитана 2 ранга Н. Л. Кладо (в апреле 1905 г. он был назначен "для вооружения и заведования вооруженными судами для обороны бассейна р. Амур") начала формироваться Амурская флотилия.
Из оставшихся во Владивостоке миноносок три — NN 94,97,98 (бывшие "Подорожник". "Рябчик", "Жаворонок") вместе с транспортами "Сунгари" и "Селенга" образовали партию траления Владивостокского порта под командованием лейтенанта Н. Г. Рейна. Миноноски N 97 и 98 вместо минных аппаратов имели по 4 47-мм пушки. Ими (экипажи из 11 и 9 человек) командовали лейтенанты Н. Н. Ромашов и П. П. Диков. Из уважения, видимо, к статусу кораблей их в списках числили миноносцами. В 1907 г. все прибывшие из Петербурга и те, что не состояли в партии траления исключили из списков. В 1908 г. закончили службу и остальные. В Черном море массовое списание миноносок началось в 1902 г. В 1904–1905 гг. исключили еще пять и в 1906 г. — последнюю N 87 (быв. "Скумбрия"). В 1908 г. исключили из списков все 60 оставшихся в строю на Балтике.

Миноносцы на параде в Неве у Петропавловской крепости.
Миноносец "Взрыв" стал первым мореходным кораблем, построенным специально для действия самодвижущимися минами Уайтхеда. Его постройкой Россия делала выдающийся шаг в судостроении, начав продолжающуюся и до наших дней эру миноносцев. Немаловажно было и то, что корабль создавался не в порядке вынужденной импровизации, как это было с винтовыми канонерскими лодками в 1855 г. или мониторами в 1863 г., а на основе предварительно осознанной концепции и перспективных обоснованных заданий. Приобретение в 1876 г. от фирмы Уайтхеда секрета конструкции производства торпеды и первой их партии в 100 единиц заставляло думать и об эффективном их применении с мореходных носителей.
Верным шагом в решении этой задачи и стал заказ первой в мире мореходной "миноносной лодки", который по контракту от 17 декабря 1876 г. выдали петербургскому заводу Ф. Берда. Так спустя 40 лет Россия приближалась к созданию действенного носителя активного минного оружия, на что когда-то положил свою жизнь великий патриот К. А. Шильдер. Но историческая забывчивость и здесь дала себя знать — о применении ракетного оружия, столь, казалось бы, гармоничного для нового достаточно большого и скоростного корабля, и не вспоминали.

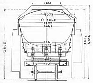
Миноносец "Взрыв". (Поперечные сечения).
Не удалось уйти и от импровизации. Корабль отличался никогда более не повторяющимися в миноносцах сугубо яхтенными образованиями корпуса. Возможно, считали, что гладкопалубная конструкция с большой седловатостью и подъемом носовой части обеспечит кораблю повышенную мореходность. Необычным было и применение медной (со стальными шпангоутами и палубой) обшивки корпуса, гарантировавшей ее от обрастания. Подобное конструктивное решение завод применял на ранее построенных катерах и паровой яхте "Маб" (1874 г., длина 15,25 м, скорость более 19 узлов). Было ли это решение осознанным выбором Морского министерства, или оно пошло навстречу заводу, позволив ему утилизовать корпус уже строившейся (а может быть, и построенной) яхты, в истории остается невыясненным. Так или иначе, но трудности размещения машин и котлов в яхтенном корпусе не способствовали оптимальности проекта. По этим причинам или в силу тогдашних понятий об использовании торпедного оружия вооружение корабля ограничивалось единственным носовым неподвижным подводным аппаратом.
Прочитали книгу? Предлагаем вам поделится своим впечатлением! Ваш отзыв будет полезен читателям, которые еще только собираются познакомиться с произведением.
Оставить комментарий
-
Вера Попова27 октябрь 01:40
Любовь у всех своя-разная,но всегда это слово ассоциируется с радостью,нежностью и счастьем!!! Всем добра!Автору СПАСИБО за добрую историю!
Любовь приходит в сентябре - Ника Крылатая
-
Вера Попова10 октябрь 15:04
Захватывает,понравилось, позитивно, рекомендую!Спасибо автору за хорошую историю!
Подарочек - Салма Кальк
-
Лиза04 октябрь 09:48
Роман просто супер давайте продолжение пожалуйста прочитаю обязательно Плакала я только когда Полина искала собаку Димы барса ♥️ Пожалуйста умаляю давайте еще !))
По осколкам твоего сердца - Анна Джейн
-
yokoo18 сентябрь 09:09
это прекрасный дарк роман!^^ очень нравится
#НенавистьЛюбовь. Книга вторая - Анна Джейн


