Читать книгу - "Линкоры Британской империи. Часть 5. На рубеже столетий - Оскар Паркс"
Аннотация к книге "Линкоры Британской империи. Часть 5. На рубеже столетий - Оскар Паркс", которую можно читать онлайн бесплатно без регистрации

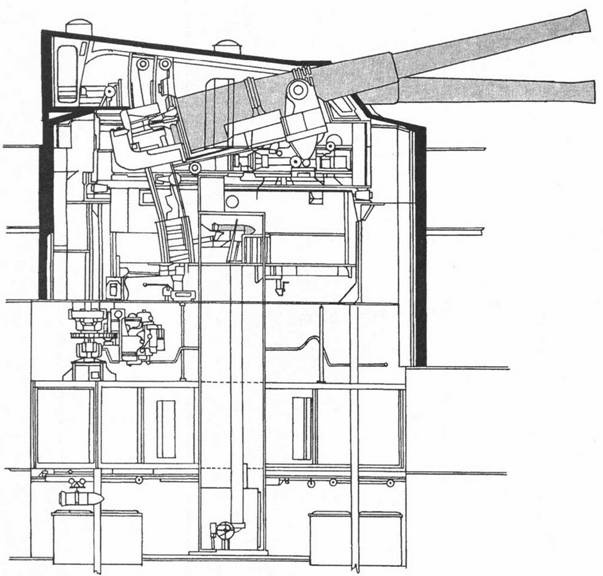
«Венерэбл». Установка 12" орудий (разрез)
«Лондон»
Поднял вымпел в Портсмуте 7 июня 1902 г. в качестве флагманского корабля Коронационного смотра, затем ушёл на Средиземное море, где оставался до апреля 1907 г. В июне 1907 г. в составе Флота Метрополии в Норе (сильно страдал от перегрева упорных подшипников валопроводов и течи в конденсаторах, а в 1906-1907 гг. образовались трещины в цилиндрах машин). В июне 1908 г. флагманский корабль контр-адмирала Флота канала, в 1908 г. прошёл большой ремонт в Чатеме. В 1910 г. флагманский корабль контр-адмирала Атлантического флота. С мая 1912 г. в III линейной эскадре 1-го флота (с основным экипажем), затем в V эскадре 2-го флота в Норе, оборудован для опытов с гидроаэропланами. Столкновение с пароходом «Дон Бенито» 11 мая 1912 г. у Гайта. Сначала войны до марта 1915 г. состоял в V линейной эскадре Флота канала, затем отправлен к Дарданеллам для восполнения убыли в корабельном составе. В 1919 г. плавбаза Резерва. Продан на слом в 1920 г.

«Лондон». Внешний вид корабля на момент вступления в строй

«Лондон». Внешний вид корабля по состоянию на 1912 г.

«Лондон». Внешний вид корабля по состоянию на 1918 г.
«Венерэбл»
Поднял вымпел в Чатеме 12 ноября 1902 г. и был отправлен на Средиземноморье в качестве флагманского корабля контр-адмирала. 26 июня 1905 г. в Алжирской гавани коснулся днищем дна, получил незначительные повреждения. В августе 1907 г. стал рядовым кораблём (флаг перенесён на «Принс оф Уэлс»), В 1909 гг. на Мальте установлена система контроля огня. В.мае 1912 г. корабль включён в состав V линейной эскадры, экипаж уменьшен до основного. В феврале-октябре 1909 г. прошёл большой ремонт в Чатеме, затем ушёл в Атлантику (установлена радиостанция). С мая 1912 г. состоял с уменьшенным экипажем в составе V линейной эскадры. С началом войны до октября 1914 г. принимал участия в операциях у бельгийского побережья, когда эффективное использование уже не представлялось возможным. В марте 1915 г. бомбардировал батареи Уэстенде, в мае получил назначение следовать к Дарданеллам, где сменил «Куин Элизабет». Участвовал в операциях у Сувы 14-21 августа, затем с тремя остальными «формидэблами» перешёл в Адриатику в соответствии с соглашением о выделении англичанами эскадры линкоров и крейсеров для блокады австрийского флота.
«Принс оф Уэлс»
В марте 1904 г. вступил в состав Резерва флота в Чатеме. Поднял вымпел 18 мая 1904 г. и направлен в Средиземное море, где прослужил до 1906 г. Столкновение у Орана 29 июля 1905 г. с пароходом «Энидвин», распоровшим надводный борт линкора в уровне средней палубы. В мае 1906 г. вступил в вооружённый резерв в Портсмуте. Несчастный случай в машинном отделении 16 апреля 1906 г., 3 убито, 4 ранено; ремонт в июне-ноябре 1906 г. С сентября 1906 по август 1907 г. состоял флагманским кораблём контр-адмирала Средиземноморской эскадры, в ноябре 1908 г. переведён в состав Атлантического флота флагманским кораблём командующего (до декабря 1910 г.). Взрыв в кочегарке 2 июля 1909 г. В феврале-мае 1911 г. ремонт в Гибралтаре. В мае 1912 г. придан III линейной эскадре 1-го флота (с 1 по 13 мая состоял флагманским кораблём вице-адмирала), затем флагманский корабль контр-адмирала 2-го флота в Портсмуте; столкновение с подводной лодкой С-32 во время манёвров 2 июня 1913 г., получил небольшие повреждения. С 1912 г. в составе V линейной эскадры Флота канала. В марте 1915 г. перешёл к Дарданеллам, прикрывал высадку у Анзака 25 апреля. 12 мая убыл в Адриатику. Продан на слом в 1920 г.
«Куин»
Вступил в строй 7 апреля 1904 г., отправлен в Средиземное море, где находился до декабря 1908 г. (с февраля 1907 г. состоял флагманским кораблём). Сел на мель 28 августа 1905 г., получил незначительные повреждения. В декабре 1908 г. переведён в Атлантику (1 февраля 1910 г. столкновение с греческим пароходом «Дафуй», незначительные повреждения). В 1909-1910 гг. прошёл ремонт в Девонпорте. В мае 1912 г. присоединён к III линейной эскадре 1-го флота, флагманский корабль вице-адмирала 2-го и 3-го флотов с мая 1912 г. 13 января 1913 г. в него врезался «Старлинг» у Ширнесса, нанеся лёгкие повреждения. В 1912-1914 гг. в составе V линейной эскадры, с началом первой мировой войны участвовал в операциях в Ла-Манше. 15 марта 1915 г. получил приказание перейти к Дарданеллам, прикрывал высадку у Анзака 25 апреля. 12 мая 1915 г. вместе с «Имплекэблом», «Лондоном» и «Принс оф Уэлс» перешёл на Адриатику на усиление итальянского флота, оставался в Таранто как корабль-база до 1918 г. Продан на слом в 1920 г.

«Венерэбл». Внешний вид корабля на момент вступлени в строй

«Венерэбл». Внешний вид корабля по состоянию на 1915 г.

«Куин». Внешний вид корабля

«Куин». Внешний вид корабля по состоянию на 1916 г.
Выше уже упоминалось о проекте Рида («Энтерпрайз») с бронированным внутренним дном, который, хотя и был отклонён Советом Адмиралтейства, может считаться предтечей систем подводной защиты, выдвинутых и опробованных во французском и русском флотах. Возросшая точность оснащённых гироскопом торпед, помноженная на резко повысившуюся эффективность миноносцев, вывела угрозу риска потери тяжёлых кораблей от подводного оружия в один ряд с возможностью потопления их артиллерией и послужила во всех флотах толчком к началу интенсивных работ по выработке наилучшей системы защиты корпуса от торпедного попадания.
Прочитали книгу? Предлагаем вам поделится своим впечатлением! Ваш отзыв будет полезен читателям, которые еще только собираются познакомиться с произведением.
Оставить комментарий
-
Вера Попова10 октябрь 15:04
Захватывает,понравилось, позитивно, рекомендую!Спасибо автору за хорошую историю!
Подарочек - Салма Кальк
-
Лиза04 октябрь 09:48
Роман просто супер давайте продолжение пожалуйста прочитаю обязательно Плакала я только когда Полина искала собаку Димы барса ♥️ Пожалуйста умаляю давайте еще !))
По осколкам твоего сердца - Анна Джейн
-
yokoo18 сентябрь 09:09
это прекрасный дарк роман!^^ очень нравится
#НенавистьЛюбовь. Книга вторая - Анна Джейн
-
Гость Алла10 август 14:46
Мне очень понравилась эта книга, когда я её читала в первый раз. А во второй понравилась еще больше. Чувствую,что буду читать и перечитывать периодически.Спасибо автору
Выбор без права выбора - Ольга Смирнова


