Читать книгу - "Тяжелый крейсер “Алжир" (1930-1942) - Юрий Александров"
Аннотация к книге "Тяжелый крейсер “Алжир" (1930-1942) - Юрий Александров", которую можно читать онлайн бесплатно без регистрации

Тяжелый крейсер “Алжир". 1934 г.
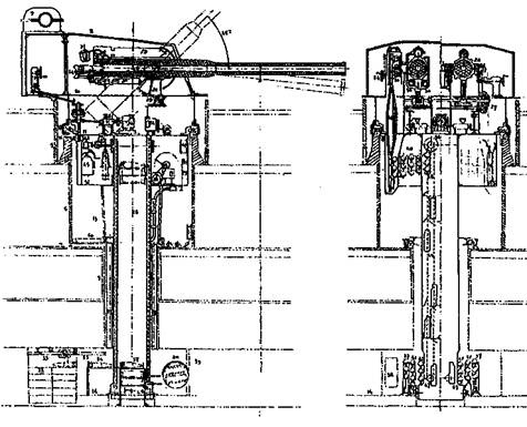
(Продольный и поперечный разрезы 203-мм башенной установки)
Имелось три поста управления связью и сигнализацией: пост управления световыми приборами, центральный узел радиосвязи, узел связи и управления в боевой рубке.
Артиллерию главного калибра крейсера “Алжир” составляли восемь орудий калибра 203-мм в четырех спаренных башенных установках. Башни были расположены группами по две – в носовой и кормовой. В каждой из групп башни располагались линейно-возвышенно. Согласно официальным данным (Jean Mouline, Patrick Maurand Le Croiseur Algerie, Marine Edition, Nantes, 1999), на “Алжире” были установлены орудия калибра 203-мм, аналогичные орудиям шести предыдущих “вашингтонских” крейсеров.
На “Алжире” вес этих четырех артустановок составлял 935,58 т, в том числе 158,58 т по статье “артиллерия” и 777 т по статье “судовые конструкции” (construction navale). Углы обстрела составляли по 135° на борт.
Характеристики 203-мм орудий образца 1924 года были следующими: калибр 203 мм, длина ствола в калибрах 50, общая длина орудия 10,5 м, длина ствола 10,149 м, длина зарядной части 1,856 м, объем зарядной части 91,682 куб.дм, длина нарезов 8,122 м, число нарезов 60 (1,9 х 7,5 мм), шаг нарезов – 1 оборот на 25,59 калибра, угол нарезов 7 °, вес орудия с затвором: 20716 кг, углы снижения/возвышения: – 5 °/ + 45 °, скорострельность 4 выстрела/мин.
Вначале на вооружении крейсера было два типа снарядов: тяжелые и облегченные. Тяжелые бронебойные снаряды (OPf) весили 123,1 кг. В этом случае, при начальной скорости снаряда 850 м/сек и угле возвышения орудия 45°, дальность стрельбы составляла 31400 м. При угле возвышения 30° дальность составляла 28000 м. При заряде в 53 кг максимальное давление газов в стволе достигало 3200 кг/кв.см. Тяжелые фугасные снаряды (ОБА) весили 123,82 кг. Бронебойный (облегченный) снаряд этого весил 119,07 кг, фугасный 119,72 кг. Усовершенствованный тяжелый бронебойный снаряд образца 1936 года весил 134 кг. Заряд ВМ 13 весом 47 кг (в двух картузах) сообщал этому снаряду начальную скорость 820 м/сек при давлении газов в стволе порядка 3000 кг/кв.см. Живучесть ствола составляла 600 выстрелов.
Как известно, башни главного калибра крейсера “Алжир”, имели намного более мощное бронирование, чем башни крейсеров предшествующих проектов. Они были и другого образца (Modele 1931). Поэтому существующая информация о том, что “Алжир” был вооружен также и уникальными 203-мм орудиями образца 1933 года, представляется весьма вероятной.
Согласно этой информации (Cruisers of World War II by M.J. Whitel; http//www.navweaps.com/weapons/WNFR8-55ml931htm), орудия этой модификации использовались только на крейсере “Алжир” и отличались, в первую очередь, более длинным каналом ствола. Сообщалось, что при создании орудий для
“Алжира” использовались элементы орудий калибра 240-мм/50 мод. 1. Эти орудия, отличавшиеся великолепными баллистическими характеристиками, стояли на первых французских турбинных линейных кораблях типа “Дантон” (1909 год).
Новые 203-мм орудия были приняты на вооружение в 1933 году и имели следующие характеристики (в скобках данные по 203-мм орудиям образца 1924 г): вес орудия 21,69 т (20,17 т), длина орудия 11,65 м (10,5м), длина нарезной части ствола 11,3 м (10,1495 м), длина зарядной части 1,8555 м, объем зарядной части 91,682 дм’ (91,682 дм5 ), длина нарезов 9,272 м (8,122 м), число нарезов 60 (1,9 х 7,5 мм), шаг нарезов 1 оборот на 25,59 калибра, скорострельность 3 выстрела/мин (4 выстрела/мин), живучесть около 600 выстрелов.
Согласно той же информации, бронебойные снаряды образца 1936 года были весом 134 кг, длиной 0,97 м. Снаряды других типов (бронебойные и фугасные) весили от 123,1 кг до 123,82 кг, имели длину 1,05 м. Вес их взрывчатого вещества составлял 4,0 кг у бронебойных снарядов и 8,3 кг у фугасных. Заряд ВМ 13 весом 47 кг (в двух картузах) сообщал бронебойному снаряду образца 1936 года начальную скорость 840 м/ сек при давлении газов в стволе 3050 кг/кв.см. При угле возвышения 45° 203-мм орудие образца 1933 года посылали бронебойные снаряды образца 1936 года весом 134 кг на дальность около 31000 м, снаряды весом 123,1 кг на 31400 м при угле возвышения 45° и на дальность 28000 м при угле возвышения 30°.
Башни главного калибра образца 1931 года обеспечивали скорость подъема/опускания ствола 10 град/сек, максимальные углы снижения/подъема -5 град/+45 град, скорость вращения башни в горизонтальной плоскости составляла 6 град/сек. Башни могли поворачиваться на 150° на борт. Механизмы подъема орудий и вращения башен имели электрический привод. Электродвигатели с редукторами обслуживали четыре подъемника и вагонетки, подвозившие снаряды и заряды к подъемникам.

Тяжелый крейсер “Алжир". 1934 г.
(вид сверху с указанием секторов наведения артиллерийских установок и торпедных аппаратов)
Номера орудий и названия башен главного калибра крейсера “Алжир ”
| Номер башни | Орудие | Номер орудия | Орудийная люлька | Название башни |
| I | Левое | R 1931№ 8 | 51 G | “Алжир” |
| Правое | R 1931№6 | 52D | (Alger) | |
| II | Левое | R 1931№ 7 | 53 G | “Оран” |
| Правое | R 1931№ 10 | 54D | (Oran) | |
| III | Левое | R 1931№ 12 | 55 G | “Константина” |
| Правое | R 1931№4 | 56D | (Constantine) | |
| IV | Левое | R 1931№ 11 | 57 G | “Кара-Мустафа” |
| Правое | R 1931№ 3 | 58D | (Kara Mustapha) |
Снаряды и заряды, использовавшиеся в 100-мм зенитной артустановке образца 1930 года
| Тип снаряда | Фугасный (Opf) образца 1928 года | Полубронебойный (ОБА) образца 1928 года | Универсальный образца 1921 /1931 годов |
| Взрыватель | FS 27/35 образца 1929 год | FDF М1е 255 или FDF24131RYG Marine | FF24/31 А образца 1929 года |
| Пороховой заряд | 4 кг ВМ7 | 4 кг ВМ7 | 3 кг ВМ5 |
| Общий вес обоймы* | 24 кг | 22,7 кг | 21,8 кг |
Тактико-технические характеристики 37-мм зенитных артустановок крейсера “Алжир”
| Характеристика | 37-мм зенитная артустановка образца 1925 года | 37-мм зенитная артустановка образца 1933 года |
| Калибр, мм | 37 | 37 |
| Длина ствола в калибрах | 50 | 50 |
| Вес снаряда, кг | 0,725 (полубронебойный) | 0,725 (полубронебойный); 0,755 (трассирующий) |
| Начальная скорость полубронебойного снаряда, м/сек | 840 | 810 |
| Углы возвышения/снижения, град | + 80/-15 | + 80/-15 |
| Дальность стрельбы, м (угол возвышения, град) | 7200 (45) | 7200 (45) |
| Скорострельность, выстрелов мин на ствол | 20 выстрелов/мин | 30 выстрелов/мин |
| Вес установки, кг | 198 | 300 |
Башни обшивались плитами из хромо-никелевой брони с прочностью 80-100кг/кв. мм.
Прочитали книгу? Предлагаем вам поделится своим впечатлением! Ваш отзыв будет полезен читателям, которые еще только собираются познакомиться с произведением.
Оставить комментарий
-
Вера Попова27 октябрь 01:40
Любовь у всех своя-разная,но всегда это слово ассоциируется с радостью,нежностью и счастьем!!! Всем добра!Автору СПАСИБО за добрую историю!
Любовь приходит в сентябре - Ника Крылатая
-
Вера Попова10 октябрь 15:04
Захватывает,понравилось, позитивно, рекомендую!Спасибо автору за хорошую историю!
Подарочек - Салма Кальк
-
Лиза04 октябрь 09:48
Роман просто супер давайте продолжение пожалуйста прочитаю обязательно Плакала я только когда Полина искала собаку Димы барса ♥️ Пожалуйста умаляю давайте еще !))
По осколкам твоего сердца - Анна Джейн
-
yokoo18 сентябрь 09:09
это прекрасный дарк роман!^^ очень нравится
#НенавистьЛюбовь. Книга вторая - Анна Джейн


