Читать книгу - "Потерянные царства - Захария Ситчин"
Аннотация к книге "Потерянные царства - Захария Ситчин", которую можно читать онлайн бесплатно без регистрации

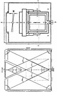
Рис. 122
Именно здесь Познански сделал самое удивительное свое открытие, вызвавшее настоящую бурю. Измерив расстояние и угол между двумя точками солнцестояния, он понял, что наклон земной оси по отношению к плоскости орбиты, на котором основывались астрономические аспекты конструкции Каласасайи, составлял не 23,5 градуса, как в настоящее время.
Познански вычислил, что величина наклонения, использованная для ориентации линий наблюдений Каласасайи, равняется 23° 8'. В соответствии с формулами, принятыми на международной конференции в Париже в 1911 году и учитывающими географическое положение и высоту места, это означает, что комплекс Каласасайя был построен примерно в 15000 году до нашей эры!
Объявив Тиауанаку древнейшим городом мира, построенным еще до Потопа, Познански неизбежно навлек на себя гнев научного сообщества того времени, поскольку большинство ученых придерживалось теории Макса Уле, утверждавшего, что Тиауанаку был основан в самом начале христианской эры.
Наклон земной оси к плоскости эклиптики не следует путать (как это делали некоторые критики По-знански) с явлением прецессии. Это явление проявляется в смене созвездий или звезд, на фоне которых наблюдается восход солнца в определенные моменты времени, например, во время весеннего равноденствия. Эти изменения протекают очень медленно — 1 градус за 72 года и 30 градусов (полный дом зодиака) за 2160 лет. Наклон земной оси изменяется вследствие почти незаметного раскачивания Земли, похожего на качку морского судна. Скорость изменения угла наклона земной оси составляет примерно один градус за семь тысяч лет.
Заинтригованное выводами Познански, немецкое астрономическое общество отправило в Перу и Боливию экспедицию, в состав которой входили директор Потсдамской астрономической обсерватории профессор Ханс Людендорф, директор Боннской обсерватории и почетный астроном Ватикана профессор Арнольд Кольшуттер, а также сотрудник Потсдамской обсерватории доктор Рольф Мюллер. Они проводили измерения и наблюдения в Тиауанаку с ноября 1926 по июнь 1928 года.
Их исследования, измерения и визуальные наблюдения в первую очередь подтвердили вывод о том, что Каласасайя представляла собой астрономическую обсерваторию. Они обнаружили, к примеру, что западная терраса с одиннадцатью колоннами позволяла — благодаря расположению колонн, их ширине и расстоянию между ними — проводить точные измерения движения Солнца, учитывающие разное число дней, разделяющих точки равноденствия и солнцестояния.
Более того, их исследования подтвердили самый спорный аспект выводов Познански: угол наклона земной оси, на котором основывалась планировка Кала-сасайи, отличался от современного. Опираясь на данные о наклонении, вычисленном в Древнем Китае и в Греции, астрономы с уверенностью могли рассчитать кривую колебаний угла лишь на период в несколько столетий. Поэтому экспедиция пришла к заключению, что результаты измерений в Каласасайе могут указывать как на 15000, так и на 9300 год до нашей эры — в зависимости от методики расчетов.
Нет нужды говорить, что для научного сообщества даже последняя дата была абсолютно неприемлемой. Уступив под напором критики, Рольф Мюллер провел новые исследования в Перу и Боливии, объединив свои усилия в Тиауанаку с Познански. Исследователи обнаружили, что возможны несколько вариантов, которые дают разные даты. Во-первых, если наблюдение за точкой солнцестояния производилось не с того места, на которое указывал Познански, то угол между точками солнцестояния (и значит, наклонение) будет другим. Кроме того, точно неизвестно, когда древние астрономы фиксировали момент солнцестояния: во время появления солнца над горизонтом, в верхней точке или в момент захода за горизонт. Все эти варианты с подробными отчетами Мюллер опубликовал в авторитетном научном журнале «Baesseler Archiv» (том 14). В статье делался вывод, что наиболее вероятным следует считать угол 24° 6', что дает пересечение с расчетной кривой в 10000 и 4000 году до нашей эры.
Познански был приглашен выступить с докладом по этому вопросу на двадцать третьем международном конгрессе американистов. Он согласился со скорректированным значением наклонения, равным 24° 6', что оставляет выбор между 10150 и 4050 годом до нашей эры. Признав, что это «опасная тема», он воздержался от окончательных выводов и заявил о необходимости дальнейших исследований.
Такие исследования действительно были проведены, хотя и не в самом Тиауанаку. Мы уже упоминали о том, что календарь инков относит начальную точку к Эре Тельца, а не к Эре Овна. Сам Мюллер считал 4000 год до нашей эры возможной датой основания Куско и Мачу-Пикчу. Коме того, выше приводились работы Марии Шултен де Дэбнет, в которых она делал вывод, что «сеть Виракочи» указывает на величшгу наклонения 24" 8', и значит, на 3172 год до нашей эры (по ее расчетам).
По мере того как на юге Перу обнаруживались все новые артефакты — текстиль, саваны мумий, керамика-с изображением Виракочи, появилась возможность провести сравнение данных из Тиауанаку с данными из других мест. В результате даже самые упрямые археологи, такие, как Уэнделл С. Беннет, были вынуждены отодвинуть дату основания Тиауанаку с середины первого тысячелетия нашей эры к началу первого тысячелетия до нашей эры.
Однако радиоуглеродный анализ отодвигал общепризнанные даты все дальше и дальше. Начиная с 60-х годов двадцатого века боливийский археологический центр проводил систематические раскопки в Тиауа-нако. Первым и самым важным делом стали всеобъемлющие раскопки и восстановление «малого храма» в восточной части Каласасайи, где были найдены каменные статуи и головы. В результате проведенных работ взорам открылся внутренний двор, вероятно, служивший для ритуальных подношений. Он располагался ниже уровня земли и был окружен каменной стеной с установленными на ней каменными головами — как в Чавин де Уантар. В официальном докладе директора Национального археологического института Боливии Карлоса Понса Сангинеса («Description Su-maria del Templete Semisubterraneo de Tiwanaki», 1981 r.) отмечалось, что радиоуглеродный анализ найденного в этом месте органического вещества дает 1580 год до нашей эры. В своем монументальном труде «Panorama de la Aequeologia Boliviana» Понс Сангинес именно эту дату принимает за начало древней фазы строительства Тиауанаку.
Радиоуглеродный анализ позволяет определить возраст органических веществ, найденных на месте раскопок, но не камней, из которых сложено сооружение. Даже сам Понс Сангинес в одной из последующих работ («Tiwanaku: Space, Time and Culture») признает, что новая методика датировки позволяет отнести найденные в Каласасайе обсидиановые предметы к 2134 году до нашей эры.
В этой связи интересно читать свидетельства Хуана де Бетансоса («Suma у Narracion de los Incas», 1551), сообщавшего о том, что, когда вождь по имени Кон-Тики Виракоча основал Тиауанаку, «с ним был его народ… И когда он вышел из лагуны, то направился в место рядом с ней, где теперь стоит деревня Тиагуа-нако». Бетансос передает легенду индейцев о том, что уже после заселения этих мест земля погрузилась во тьму. Но Виракоча «приказал солнцу повторить свой обычный путь, и внезапно начался новый день».
Прочитали книгу? Предлагаем вам поделится своим впечатлением! Ваш отзыв будет полезен читателям, которые еще только собираются познакомиться с произведением.
Оставить комментарий
-
Вера Попова10 октябрь 15:04
Захватывает,понравилось, позитивно, рекомендую!Спасибо автору за хорошую историю!
Подарочек - Салма Кальк
-
Лиза04 октябрь 09:48
Роман просто супер давайте продолжение пожалуйста прочитаю обязательно Плакала я только когда Полина искала собаку Димы барса ♥️ Пожалуйста умаляю давайте еще !))
По осколкам твоего сердца - Анна Джейн
-
yokoo18 сентябрь 09:09
это прекрасный дарк роман!^^ очень нравится
#НенавистьЛюбовь. Книга вторая - Анна Джейн
-
Гость Алла10 август 14:46
Мне очень понравилась эта книга, когда я её читала в первый раз. А во второй понравилась еще больше. Чувствую,что буду читать и перечитывать периодически.Спасибо автору
Выбор без права выбора - Ольга Смирнова


