Читать книгу - "Секреты раннего урожая. Все о парниках, теплицах и подготовке семян - Наталия Костина-Кассанелли"
Аннотация к книге "Секреты раннего урожая. Все о парниках, теплицах и подготовке семян - Наталия Костина-Кассанелли", которую можно читать онлайн бесплатно без регистрации

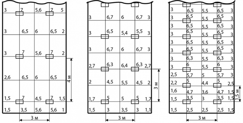
Рис. 38. Варианты размещения светильников
Биологический способ обогрева грунта насчитывает столетия. Он основан на ферментации биотоплива, в качестве которого можно использовать навоз, компосты, любые органические остатки и даже мусор.
Это интересно! Наименьшая теплопотеря у теплиц, форма которых стремится к шару: купольных, арочных, сводчатых и с шатровым перекрытием.
Самым популярным видом биотоплива является навоз, а наибольшее количество тепла выделяется при разложении конского навоза. Однако конский навоз не так легко достать, поэтому зачастую приходится использовать то, что имеется под рукой, – навоз овечий, козий, коровий, кроличий.
Самым доступным видом биотоплива является домовой мусор, который для эффективного разогрева должен состоять на 20–40 % из тряпья и бумаги. Разогревается такое биотопливо довольно долго, но достигает высокой температуры, сравнимой с температурой разогретого конского навоза. Удерживается такая температура также достаточно долго.
Растительный перегной также прекрасный вариант биотоплива, с успехом заменяющий навоз. Для его получения свежескошенную траву засыпают в деревянный ящик или бочку (можно пластиковую), добавляют 5 %-ный раствор мочевины или другого азотного удобрения, накрывают крышкой, а сверху кладут груз. Через 10–14 дней растительное биотопливо будет готово. Растительный перегной можно применять и в качестве подкормки для овощных культур. Для этого полученную массу разбавляют водой в пропорции 1: 1 и поливают ею растения.
Виды биотоплива на основе навоза, применяемые для обогрева весенних теплиц:
– смесь коровьего навоза и домового мусора в пропорции 2: 3;
– конский навоз с подстилкой из соломы или соломисто-торфяной подстилкой;
– смесь коровьего навоза с конским в пропорции 1: 1;
– смесь коровьего навоза с древесными опилками в пропорции 7: 3;
– смесь коровьего навоза с волокнистым торфом в пропорции 7: 3;
– смесь коровьего навоза и льняной костры в пропорции 7: 3;
– смесь конского навоза с домовым мусором в любой пропорции;
– смесь конского навоза с овечьим или козьим в любой пропорции;
– смесь конского навоза с листвой в пропорции 7: 3;
– смесь овечьего, козьего и кроличьего навоза в любой пропорции.
Заготавливать биотопливо на основе навоза можно с августа. Хранить его следует крупными хорошо утрамбованными штабелями, ширина которых должна составлять 3–4 м, а высота 1,5–2 м, произвольно располагая в длину с севера на юг. Чтобы зимой штабеля топлива не промерзали, их утепляют опилками или торфом, а сверху укрывают соломенными матами.
Весенний разогрев биотоплива. Прежде чем приступить к закладке биотоплива и грунта в теплицу, необходимо переложить заготовленный навоз в рыхлый штабель и разогреть. Для этого в штабеле проделывают несколько лунок и наливают в них горячую воду. После этого штабель укрывают мешковиной или непрозрачной пленкой и оставляют на 3–4 дня. За это время навоз разогревается до температуры 50–60 °C.
Совет. Чем раньше вы начинаете эксплуатацию весенней теплицы, тем толще должен быть слой биотоплива. При закладке биотоплива под грунт его слой может иметь толщину от 40 до 70 см. Толщину слоя обычно подбирают экспериментальным путем, и во многом она зависит от сроков начала эксплуатации теплицы и погодных условий. На дно будущих грядок кладут более холодный навоз, а сверху и по бокам ямы – более горячий. Через несколько дней, когда навоз осядет, нужно добавить еще порцию. Утрамбовывать топливо не следует – навоз должен лежать по возможности рыхло. Сверху насыпают слой земли, торфа или компоста толщиной 25–30 см.
Это важно! При использовании биотоплива нельзя забывать об уровне кислотности и изменении качества почвы земли. Оптимальный уровень имеет коровий навоз (рН 6–7). Кора и опилки создают кислую среду, конский навоз – щелочную. Биотопливо после употребления можно использовать как перегной.
Зимние теплицы, в которых овощи или цветы выращивают круглый год, – дорогостоящие сооружения, и прежде всего за счет наличия отопления.
Совет. Начинать экономить на отоплении нужно еще на стадии проектирования и строительства теплицы. Поставьте теплицу на утепленный фундамент, сделайте стены 50–70 см высоты с теплоизоляцией полистиролом толщиной не менее 100 мм, а под грунт засыпьте слой термоизолятора (можно просто керамзита). При соблюдении этих правил тратить на отопление придется значительно меньше.
Электрическое отопление
Электрическое отопление имеет самый высокий КПД, просто в обслуживании, оно не дает побочных эффектов (ядовитых для растений газов) и идеально для микроклимата теплицы. Есть несколько вариантов такого отопления.
Конвекторы. За счет конвекционных воздушных потоков конвекторов теплица прогревается практически равномерно.
Недостаток: недостаточный прогрев грунта.
Калорифер. Этот тип обогревателей мобилен, его можно без труда перемещать, он обеспечивает циркуляцию воздуха внутри теплицы и не дает образоваться конденсату на стеклах.
Недостаток: один калорифер не способен равномерно прогреть теплицу, и приходится использовать одновременно несколько обогревателей. Также нужно следить, чтобы растения не попали под прямой поток жаркого воздуха и не погибли от перегрева.
Совет. Лучше устанавливать электрические воздушные обогреватели под стеллажами с растениями и оборудовать их терморегуляторами.
Теплый пол. Этот тип обогрева имеет массу достоинств: не очень дорог, экономен в эксплуатации, поскольку температура контролируется автоматически, а тепло распределяется равномерно. Основная сложность устройства теплого пола в теплице (рис. 39), в условиях повышенной влажности, – правильный монтаж оборудования, поэтому его лучше доверить специалистам.

Рис. 39. Теплый пол в теплице: 1 – плодородный грунт (≥ 30 см); 2, 6 – песчаная засыпка (≥ 5 см); 3, 5 – защитная сетка; 4 – нагревательный кабель
Инфракрасные обогреватели. Этот тип отопления хорош тем, что согревается не воздух в помещении, а непосредственно растения и пространство вблизи них – следовательно, с помощью инфракрасного нагрева можно создавать разные температурные зоны для различных культур в одной теплице. Также к достоинствам приборов можно отнести легкость установки, экономию электроэнергии и длительный срок службы – не менее 10 лет.
Прочитали книгу? Предлагаем вам поделится своим впечатлением! Ваш отзыв будет полезен читателям, которые еще только собираются познакомиться с произведением.
Оставить комментарий
-
Вера Попова27 октябрь 01:40
Любовь у всех своя-разная,но всегда это слово ассоциируется с радостью,нежностью и счастьем!!! Всем добра!Автору СПАСИБО за добрую историю!
Любовь приходит в сентябре - Ника Крылатая
-
Вера Попова10 октябрь 15:04
Захватывает,понравилось, позитивно, рекомендую!Спасибо автору за хорошую историю!
Подарочек - Салма Кальк
-
Лиза04 октябрь 09:48
Роман просто супер давайте продолжение пожалуйста прочитаю обязательно Плакала я только когда Полина искала собаку Димы барса ♥️ Пожалуйста умаляю давайте еще !))
По осколкам твоего сердца - Анна Джейн
-
yokoo18 сентябрь 09:09
это прекрасный дарк роман!^^ очень нравится
#НенавистьЛюбовь. Книга вторая - Анна Джейн


